94 Eagle Court Saugeen Shores, Ontario N0H 2C3
$699,000Maintenance, Common Area Maintenance, Insurance
$500 Monthly
Maintenance, Common Area Maintenance, Insurance
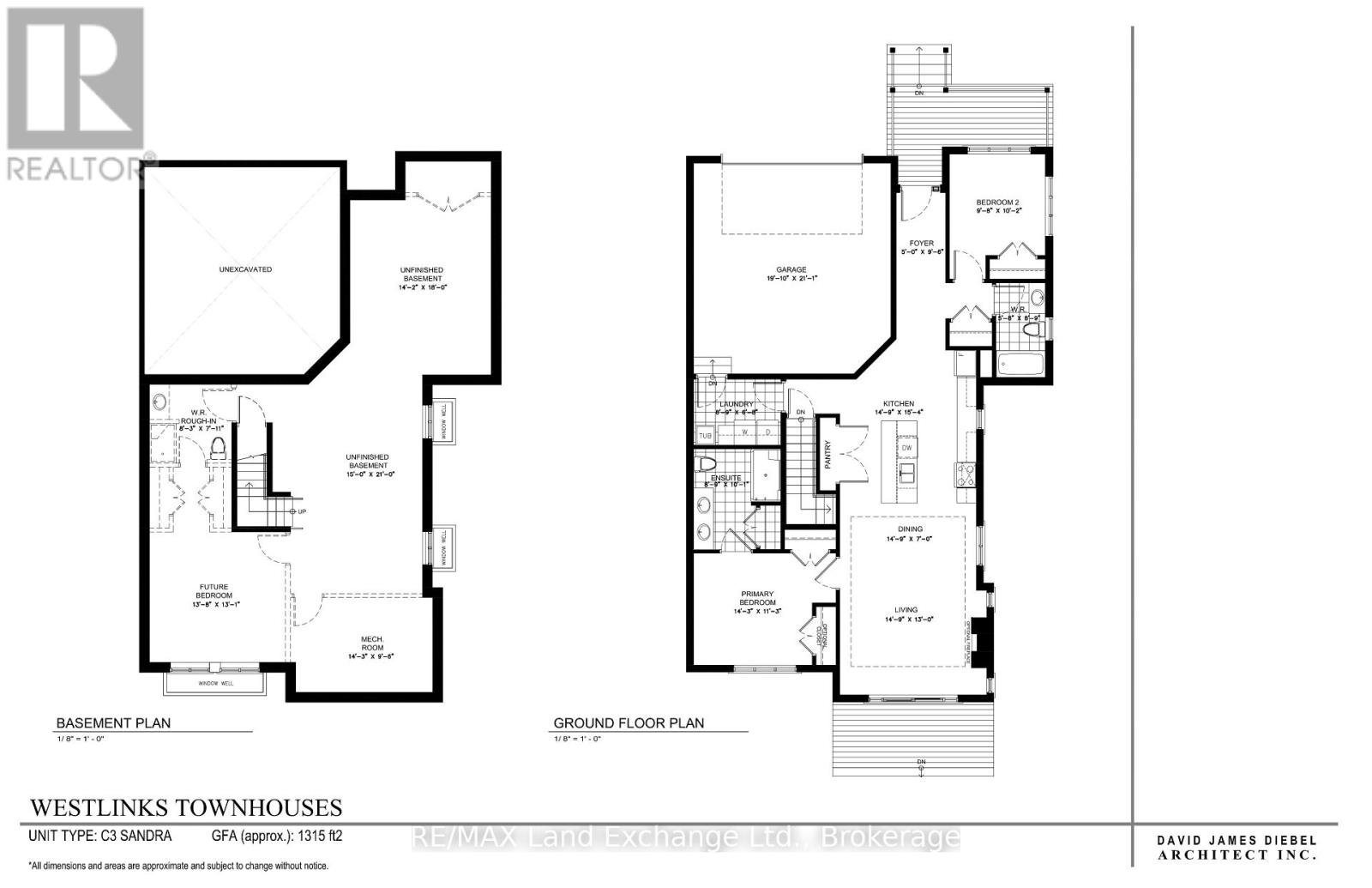
$500 MonthlyWelcome to the Westlinks Development-Phase 3 Condominium Townhouses. Block F Unit # 20 (see site plan). The SANDRA model is a bright exterior unit with a double-car garage. It offers a spacious plan with an open concept kitchen, dining area, living room, plus two bedrooms, an ensuite bathroom, a four-piece guest bathroom, laundry & large foyer. There is a full, unfinished basement with a bathroom rough-in. Ask about the basement finishing package and other additional upgrade selections. If you act fast, you can personalize your home before construction starts. Located on the edge of Port Elgin, close to all amenities, Westlinks is a front porch community suitable for all ages. There is a 12-hole links-style golf course, a tennis/pickle-ball court, workout/fitness room, all with membership privileges and included in the condo fees. Serviced by a private condo road, natural gas, municipal water and sewer. The photos are not of this property but of another finished model, which will give you a sense of the floor plan and finishes. The exterior photo is the builder's conceptual drawing. Property taxes and property assessment are to be determined. Don't miss your chance to secure one of these condos at the Westlinks development. HST is included if the buyer qualifies for a rebate & assigns it to the seller. (id:47378)
Property Details
| MLS® Number | X12151572 |
| Property Type | Single Family |
| Community Name | Saugeen Shores |
| Community Features | Pets Allowed With Restrictions |
| Equipment Type | Water Heater |
| Features | Sump Pump |
| Parking Space Total | 4 |
| Rental Equipment Type | Water Heater |
Building
| Bathroom Total | 2 |
| Bedrooms Above Ground | 2 |
| Bedrooms Total | 2 |
| Age | New Building |
| Amenities | Exercise Centre, Visitor Parking |
| Appliances | Water Heater - Tankless, Water Meter |
| Architectural Style | Bungalow |
| Basement Development | Unfinished |
| Basement Type | Full (unfinished) |
| Cooling Type | None, Air Exchanger |
| Exterior Finish | Vinyl Siding |
| Fire Protection | Smoke Detectors |
| Foundation Type | Poured Concrete |
| Heating Fuel | Natural Gas |
| Heating Type | Forced Air |
| Stories Total | 1 |
| Size Interior | 1,200 - 1,399 Sqft |
| Type | Row / Townhouse |
Parking
| Attached Garage | |
| Garage |
Land
| Acreage | No |
| Zoning Description | R415 |
Rooms
| Level | Type | Length | Width | Dimensions |
|---|---|---|---|---|
| Main Level | Kitchen | 2.99 m | 3.1 m | 2.99 m x 3.1 m |
| Main Level | Dining Room | 4.54 m | 2.13 m | 4.54 m x 2.13 m |
| Main Level | Living Room | 4.54 m | 3.96 m | 4.54 m x 3.96 m |
| Main Level | Bedroom 2 | 2.99 m | 3.1 m | 2.99 m x 3.1 m |
| Main Level | Primary Bedroom | 4.35 m | 3.44 m | 4.35 m x 3.44 m |
| Main Level | Laundry Room | 2.71 m | 2.07 m | 2.71 m x 2.07 m |
https://www.realtor.ca/real-estate/28319273/94-eagle-court-saugeen-shores-saugeen-shores
Contact Us
Contact us for more information
Kate Cammidge-Irwin
Salesperson
https://www.youtube.com/embed/hp9AJWBgumY
realestatebykate.ca/
www.facebook.com/realestatebykate/
twitter.com/
www.linkedin.com/profile/edit
www.instagram.com/remax_kate/
645 Goderich St
Port Elgin, Ontario N0H 2C0
Susan Terry
Broker
www.susanterry.ca/
www.facebook.com/susanterryremax
twitter.com//susanterryremax
www.linkedin.com/pub/susan-terry/42/9b4/5b0
645 Goderich St
Port Elgin, Ontario N0H 2C0
Nicole Camden
Salesperson
https://www.youtube.com/embed/hp9AJWBgumY
soldbynicole.ca/
www.facebook.com/realestatebykateandnicole/
www.linkedin.com/in/nicole-camden-02663690/?originalSubdomain=ca
www.instagram.com/remax_kate.and.nicole/
645 Goderich St
Port Elgin, Ontario N0H 2C0

























